Mönchengladbach – Staffelgeschoss
Adresse: Compesstraße 30–38 & Breuerstraße 11–17, Mönchengladbach
Für dieses Bauvorhaben habe ich die Planung und Entwurfsentwicklung eines Staffelgeschosses übernommen. Dabei wurden auf den bestehenden Gebäuden zwei neue Wohneinheiten konzipiert, die eine optimale Nutzung der Dachflächen ermöglichen. Mein Leistungsumfang umfasste die Leistungsphasen 1 bis 5 gemäß HOAI:
Grundlagenermittlung & Vorplanung
Entwurfsplanung mit optimaler Raumnutzung
Genehmigungsplanung und Einreichung des Bauantrags
Das Projekt wurde erfolgreich bis zur Baugenehmigung geführt, und der Baubeginn ist für den 01.05.2025 geplant.

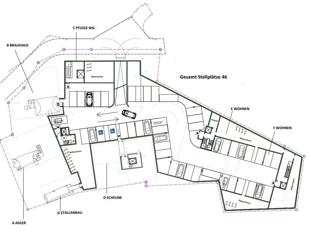
Walddorfhäslach – Umnutzung eines denkmalgeschützten Gasthauses
Adresse: Walddorfhäslach

Dieses historische Gebäude, ehemals ein Gasthaus, steht unter Denkmalschutz und wurde im Rahmen eines Sanierungs- und Umnutzungsprojekts neu gestaltet. Ich war sowohl für die Planung als auch für die Ausführung verantwortlich, wodurch das Gebäude eine neue Funktion erhalten hat. Im Zuge der Sanierung wurden folgende Nutzungen integriert:
Bürgerbüro für die Stadt
Mehrere Wohneinheiten
Bibliothek als öffentlicher Raum
Das Projekt wurde erfolgreich realisiert und vereint heute den Charme der historischen Bausubstanz mit modernen Anforderungen.




Bilder ©️ CB-RACK-Fotografie
Bauleitung-Einfamilienhaus
Adresse: Kaarsterweg 9, Düsseldorf
Für dieses Bauvorhaben habe ich die Bauleitung eines Einfamilienhauses übernommen. Mein Verantwortungsbereich umfasste die Überwachung und Koordination aller Bauabläufe, um eine termingerechte, qualitativ hochwertige und kostenbewusste Umsetzung zu gewährleisten. Zu meinen Leistungen gehörten:
Das Projekt wurde erfolgreich realisiert und steht für eine hochwertige Bauqualität sowie eine präzise Umsetzung der Planungsziele.





Adresse: Moritzplatz 8–9, Krefeld 
Für dieses Wohngebäude habe ich eine umfassende Energieberatung durchgeführt, um die Energieeffizienz zu verbessern und langfristige Einsparpotenziale aufzuzeigen. Ziel war es, wirtschaftlich sinnvolle Sanierungsmaßnahmen zu entwickeln, die den Energieverbrauch reduzieren und den Wohnkomfort erhöhen. Meine Leistungen umfassten:
Analyse des Gebäudebestands hinsichtlich Dämmung, Heiztechnik und Energieverbrauch
Durch die gezielte Beratung konnten nachhaltige Sanierungsmaßnahmen definiert werden, die eine spürbare Reduzierung der Betriebskosten ermöglichen.




